projekte   |   kontakt   |   person   |   info   |   impressum

projekte   >>  öffentlich  >>  fabrikgebäude hohenwarth

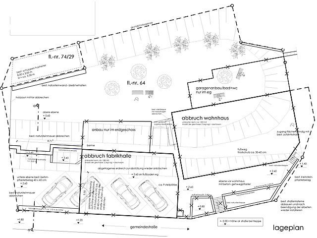
  fabrikgebäude hohenwarth:
abbruch eines fabrikgebäudes und freiflächengestaltung

bauherr:
gemeinde hohenwarth

leistungsphase:
1 - 9

ausführung:
2010

  abbruch fabrikgebäude und freiflächengestaltung hohenwarth   >> klick auf das bild öffnet
weitere ansichten / pläne